Lateral-g Forums

Lateral-g Forums (https://www.lateral-g.net/forums/index.php)
-   Wheels and Tires (https://www.lateral-g.net/forums/forumdisplay.php?f=53)
-   -   Wheel fitment diagram for 70 Chevelle Help (https://www.lateral-g.net/forums/showthread.php?t=29903)

SS454 12-19-2010 08:48 AM

Wheel fitment diagram for 70 Chevelle Help
 
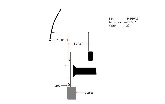
I had some time on my hands this morning so I made a diagram of the measurements I have for my rear wheels. My question is after looking at the numbers, does anyone think I could squeeze a 12.5 or 13" wide wheel in there. Backspacing numbers from the experts would be appreciated, I want the tire as close to the fender lip as possible.
Also what does the brake caliper spacing have to do with ordering, is that going to affect the offset?
I also posted this on the Chevelle web-site but I thought you Guy's were more informed on 345/335 series tire than that site.
Finalizing my choice in wheels and finishes is the hardest decision I've made on this car, I don't think a day has gone by where I did'nt change my mind.


http://i119.photobucket.com/albums/o...rdiagram-1.jpg

Apogee 12-22-2010 01:27 PM

Based on the dimensions you've provided, you could probably just squeeze a 345 in your wheelwell. A 13.625" section width and 14.56" wheel opening width pencils out with just under a 1/2" of clearance per side.

Keep in mind that the tire section width will vary depending on the width wheel you use. Also, wheels are generally 1" wider than their bead to bead measuremnt, so a 12" wide wheel actually measures closer to 13" from the outside of the lip to the other lip. As for brake fitment, the rotor hat thickness you've shown of .100" is thin, much more similar to a drum hat thickness than most rotors. If you know which brakes you are planning on going with, post up so that someone can tell you exactly what the rotor hat thickness will be. FWIW, C5/C6 rear rotors are .24" thick and C6 Z51/Z06rear rotors are .28". Caliper clearance is a function of the amount of axial and radial space around the caliper relative to the wheel mounting surface, typically the outside of the rotor hat in a disc application. Take a look at the fitment templates available for download here as that should answer your questions concerning caliper to wheel fitment.

Tobin
KORE3

The WidowMaker 12-23-2010 07:29 PM

youre not going to fit a 335 or a 345 if you plan on tucking the tire in the wheel well and doing any sort of spirited driving. im running a 315 on an 11" wheel with custom tubs and i took over a 1/2" out of the frame. i have 1/4" outside and 3/4" inside clearance. i am running a taller tire (315/35/20), but im also running a watts link which will keep the lateral migration of the axle to a minimum, especially when compared to the stock converging 4 link setup.

some may wonder why 3/4 inside clearance. the easy answer is that its what jon at driverz recommeded. the complicated answer (well not really) is that when the axle articulates it gets shorter. this is only complicated by the fact that the top of the tire moves in much more than the center of the axle. when i was measuring for tires i took this into account and was amazed at how much room was used up with only a little articulation.

also, (last part i promise) you lose a TON of real estate very quickly with the quarter panel shape of the 70-72's, so what you measure at the lip and what you measure 2" up from the lip will be vastly different. i know what your measurements show, but i think there is a little more to it.

i love your car and i love the mock up pics with the tire, i really just hope you can prove me wrong.

heres a pic of mine. i wish i could have gone closer to the quarter, but it really was impossible with how low it sits.

Tim

http://i858.photobucket.com/albums/a...i/IMG_9163.jpg

SS454 12-23-2010 09:19 PM

Tim, I don't plan on going up in the fender nearly as much as you did, wish I could, but my exhaust would'nt last long. I have worked the inner fender some when I had the quarters off so I have gained some room to go up. I think I'll just stay with a 12" wide rim and a 6 3/4" BS. I'll mock it up on my jig tomorrow and see how it looks. My first mock up was at 7" BS with no problems. I am shooting for 3/4" next to the frame, I think Jon told me 3/4" inside and 3/8" next to the fender.
What wheel did you end up going with, I really like that brushed finish you chose, what's that center color?

ProdigyCustoms 12-24-2010 06:59 AM

We just stuffed a 70 Chevelle to the very limit with 11" and 305s. We measured over and over again, even ordered 315s and tired them. At the end of the day a tick to big

http://i169.photobucket.com/albums/u.../Chevelle2.jpg

http://i169.photobucket.com/albums/u.../Chevelle3.jpg

SS454 12-24-2010 08:22 AM

I guess I should have stated in the beginning that the car has been mini tubbed.
http://i119.photobucket.com/albums/o...c/IM000788.jpg
http://i119.photobucket.com/albums/o...c/IM000794.jpg
http://i119.photobucket.com/albums/o...c/IM000801.jpg
http://i119.photobucket.com/albums/o...c/IM000787.jpg

ProdigyCustoms 12-24-2010 08:52 AM

That makes a bit more sense. Seemed like your measurements were bigger then what i rememberd. So simple math, a 345 is 1 1/2" wider then a 305. So if you notched 1 1/2", your going to be golden.

GregWeld 12-24-2010 07:17 PM

Nice looking Chevelle Frank!!


That's what RS Chevelle should look like to run it at Barrett Jackson.... Big Black and nasty! I like it!

SDMAN 12-26-2010 10:40 AM

3 Attachment(s)
No big deal to widen the wheelwell a tad. On my 70 GTO we added ~8" to each side. These are 450's, just under 29" tall on 18"D 15"W Budniks.

The WidowMaker 12-26-2010 08:44 PM

i forgot you took all that off the frame. unfortunately no one else will be able to give you accurate mesurements, so your decision will be much like mine. measure at all the critical points and then stress about it for months until you make your final decision and actually get your wheels.

i went with 20x11 wildsides with a custom colored center. its the same as my frame and its a mix of two colors. they are acutally still in the process of redoing them, and they will be much less brown when done.


All times are GMT -7. The time now is 03:33 PM.

Powered by vBulletin® Version 3.8.11
Copyright ©2000 - 2025, vBulletin Solutions Inc.
Copyright Lateral-g.net